Calvert Road, Hastings
3 Bed House - Terraced | Offers in excess of £290,000
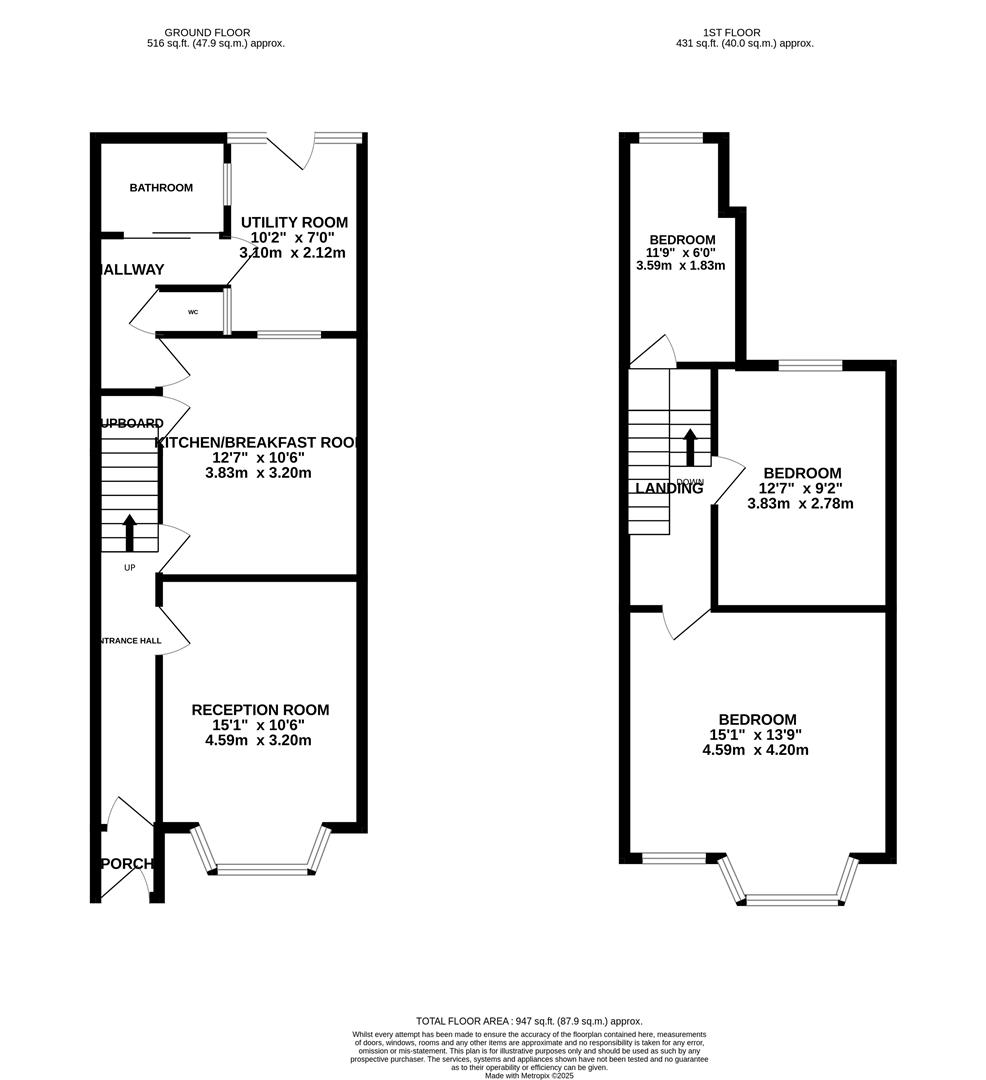
A bright three bedroom VICTORIAN TERRACED HOUSE enviably placed within walking distance of a local shop, the West Hill, Ore railway station and Hastings Town centre with access to the beach and a second mainline railway station. The accommodation here is arranged as a BAY FRONTED LIVING ROOM which enjoys a feature fireplace while the generous KITCHEN/BREAKFAST ROOM is positioned at the rear of the property providing ample storage and plenty of room for a full dining table. There is also an ADDITIONAL UTILITY ROOM with access out to the garden along with a family bathroom and a separate CLOAKROOM on this floor. The first floor houses three bedrooms, two of which are WELL PROPORTIONED DOUBLE ROOMS with the principal bedroom benefitting from BUILT-IN WARDROBES. The enclosed rear garden has been designed for LOW MAINTENANCE with an area of decking leading to a raised seating area providing the perfect spot to dine al-fresco. Set in a SOUGHT AFTER, WEST HILL LOCATION this fantastic property would make the PERFECT FAMILY HOME and is not to be missed.
Features
Calvert Road, Hastings, TN34 3NG
- Three bedrooms
- Terraced family home
- Bay fronted living room
- Additional utility room
- Generous kitchen/breakfast room
- Close to amenities
- Short walk to Alexandra Park
- Good transport links
View On Map
Something To Note
We love the properties we list, and we try to capture them in the best way possible. While we aspire for perfection, our pictures, descriptions, and measurements are made purely for guidance. We highly advise you to view the property in person, so you can gain the full experience of what can potentially be your new beautiful home.
















