Cornwallis Gardens, Hastings
1 Bed Flat | Offers in excess of £200,000
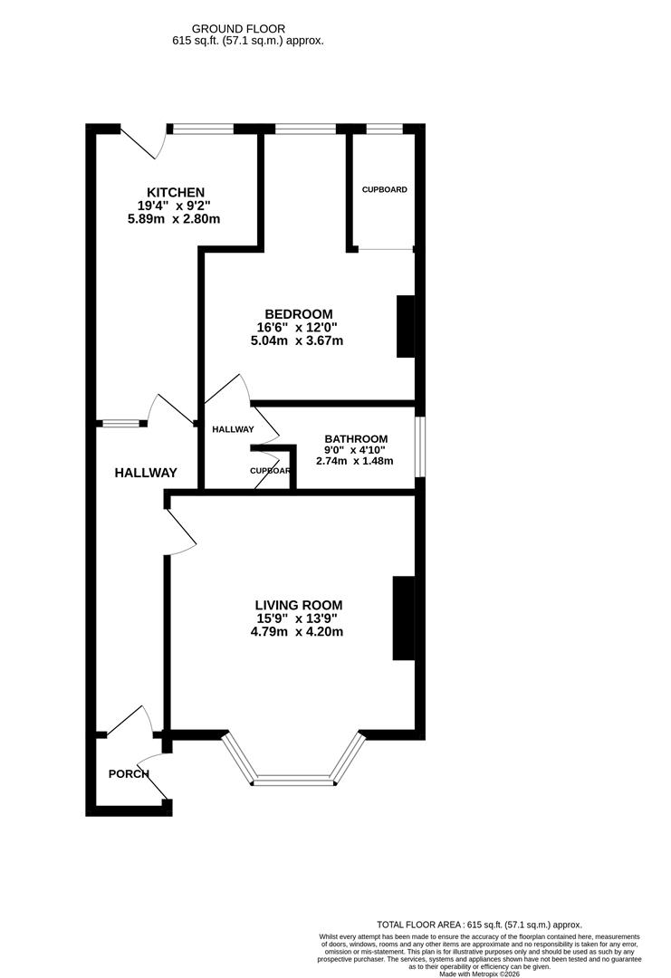
A well presented ONE BEDROOM APARTMENT positioned on the BASEMENT LEVEL of this period property, situated in a CENTRAL HASTINGS LOCATION. It’s ideally placed adjacent to the community garden, Cornwallis Gardens, and is just a short stroll from the beach, Hastings mainline railway station and a range of independent shops and arts centre in the historical ‘America Ground’. Enjoying GENEROUS PROPORTIONS, the accommodation here is accessed via a PRIVATE ENTRANCE and comprises of a BAY FRONTED LIVING ROOM which measures an impressive 15’9 x 13’9, with a SEPARATE OPEN PLAN KITCHEN/DINER which offers plenty of room for a full dining table along with contemporary fitted units which provide ample storage and
worktop space. The DOUBLE BEDROOM is positioned at the rear of the property and enjoys BUILT IN STORAGE, and a study snug together with a bathroom which benefits from a double width shower. Externally there is a PRIVATE LOW MAINTENANCE REAR GARDEN which offers a sitting/dining area on the balcony with steps down to the garden with further seating areas. Under the balcony there is ample outdoor storage , leading to an extensive cellar utilty area. Being sold with NO ONWARD CHAIN this fantastic property would make the PERFECT FIRST TIME HOME or seaside retreat and is not to be missed.
Features
Cornwallis Gardens, Hastings, TN34 1LX
- One double bedroom
- Period property
- Enclosed rear garden
- Contemporary kitchen
- Stylish fitted bathroom
- Spacious living space
View On Map
Something To Note
We love the properties we list, and we try to capture them in the best way possible. While we aspire for perfection, our pictures, descriptions, and measurements are made purely for guidance. We highly advise you to view the property in person, so you can gain the full experience of what can potentially be your new beautiful home.



















