George Street, Hastings
3 Bed Flat | Offers in excess of £225,000
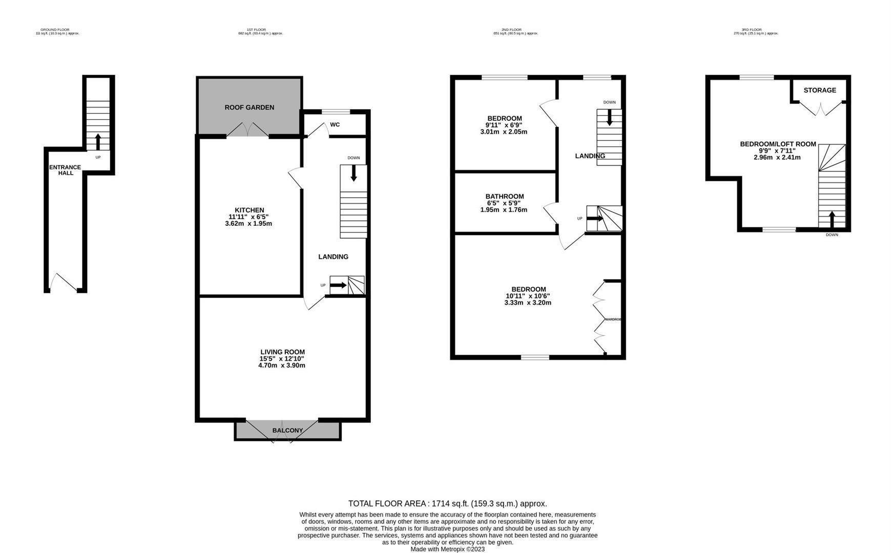
A spacious THREE BEDROOM MAISONETTE set in a favoured location on COBBLED GEORGE STREET in the heart of the Old Town. It’s only metres from the beach and ideally positioned to enjoy the independent stores, eateries and history that the Old Town has to offer, with the West Hill and Hastings Town centre also a short walk away. This charming property retains a wealth of original features with the accommodation here spanning THREE STOREYS offering a bright living room which measures 15’5 x 12’10, situated at the front of the property with a large window overlooking George Street. The separate FITTED KITCHEN can be found at the rear enjoying ample storage and worktop space, with doors leading to the rear sun terrace. There is also a cloakroom on this floor. There are three well proportioned double bedrooms arrange over the two upper floors, with two of the bedrooms benefitting from BUILT-IN STORAGE, together with a FAMILY BATHROOM enjoying a bath and shower over. Being sold with a LONG LEASE and NO ONWARD CHAIN this Grade II listed property is not to be missed and would make the PERFECT SEASIDE RETREAT.
Features
George Street, Hastings, TN34 3EG
- Three bedrooms
- Grade II listed maisonette
- Sun terrace
- Spanning three storeys
- Sought after location
- Sea views
- New lease
- No onward chain
View On Map
Something To Note
We love the properties we list, and we try to capture them in the best way possible. While we aspire for perfection, our pictures, descriptions, and measurements are made purely for guidance. We highly advise you to view the property in person, so you can gain the full experience of what can potentially be your new beautiful home.














