Stockleigh Road, St. Leonards-On-Sea
1 Bed Flat - Conversion | Offers in excess of £160,000
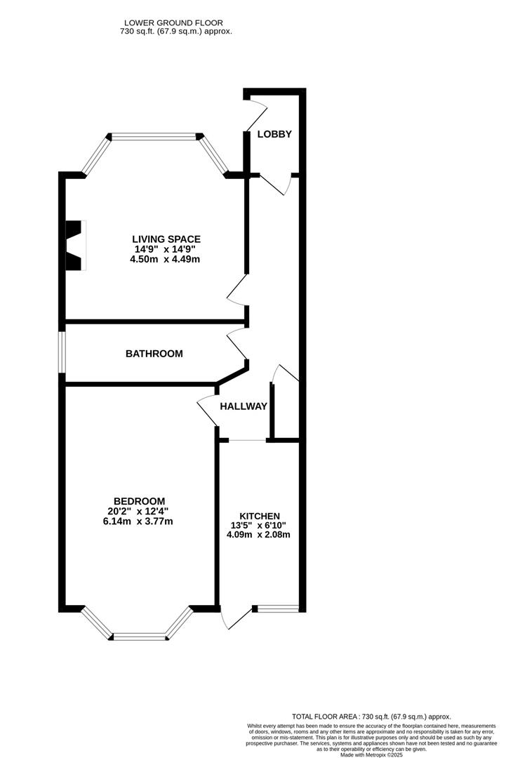
A spacious ONE BEDROOM GARDEN APARTMENT set on the lower ground floor of this PERIOD RESIDENCE. It’s enviably positioned just a short stroll from the hub of St. Leonards on Sea where there are a range of local stores, award winning eateries, the beach and a mainline railway station with connections to London. Accessed via a PRIVATE ENTRANCE the accommodation here is arranged as a BAY FRONTED LIVING SPACE which provides plenty of room for a dining table to create the ideal sociable setting while the kitchen is separate and positioned at the rear of the property benefitting from access to the COURTYARD GARDEN. There is one WELL-PROPORTIONED DOUBLE BEDROOM which enjoys a rear aspect together with a bathroom. Offering HUGE SCOPE FOR POTENTIAL and situated in a SOUGHT AFTER LOCATION, this fantastic property would make the perfect investment opportunity or SEASIDE RETREAT.
Features
Stockleigh Road, St. Leonards-On-Sea, TN38 0JP
- One bedroom apartment
- Private entrance
- Courtyard garden
- Scope for potential
- Central St Leonards location
- No onward chain
View On Map
Something To Note
We love the properties we list, and we try to capture them in the best way possible. While we aspire for perfection, our pictures, descriptions, and measurements are made purely for guidance. We highly advise you to view the property in person, so you can gain the full experience of what can potentially be your new beautiful home.










