Valleyside Road, Hastings
3 Bed House - Semi-Detached | Offers in excess of £290,000
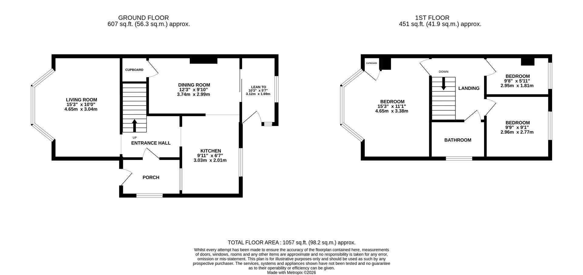
A spacious THREE BEDROOM semi detached house situated in a QUIET CUL-DE-SAC location within easy reach of Ore railway station, nearby shops and Ore Village. Accessed via an enclosed porch the accommodation spans two storeys with the ground floor arranged as a BAY FRONTED LIVING ROOM and OPEN PLAN KITCHEN DINER. The spacious kitchen enjoys fitted units offering ample storage, and is open to the dining room which benefits from BUILT-IN STORAGE and access to the rear garden through the lean to. The THREE BEDROOMS are located on the first floor, with the primary measuring an impressive 15’3 x 11’1 and relishing FAR REACHING VIEWS across Hastings Town and Speckled Woods, together with the FAMILY BATHROOM where there is a bath with a shower over. The rear garden enjoys an EXPANSE OF LAWN followed by a patio creating the perfect space to catch the afternoon sun. Located close to amenities this property would make the PERFECT FAMILY HOME and should not be missed.
Features
Valleyside Road, Hastings, TN35 5AD
- Three bedrooms
- Quiet cul-de-sac
- Open plan kitchen diner
- Semi-detached property
- Close to amenities
- Enclosed rear garden
View On Map
Something To Note
We love the properties we list, and we try to capture them in the best way possible. While we aspire for perfection, our pictures, descriptions, and measurements are made purely for guidance. We highly advise you to view the property in person, so you can gain the full experience of what can potentially be your new beautiful home.





















