Warrior Square, St. Leonards-On-Sea
2 Bed Flat | Offers in excess of £260,000
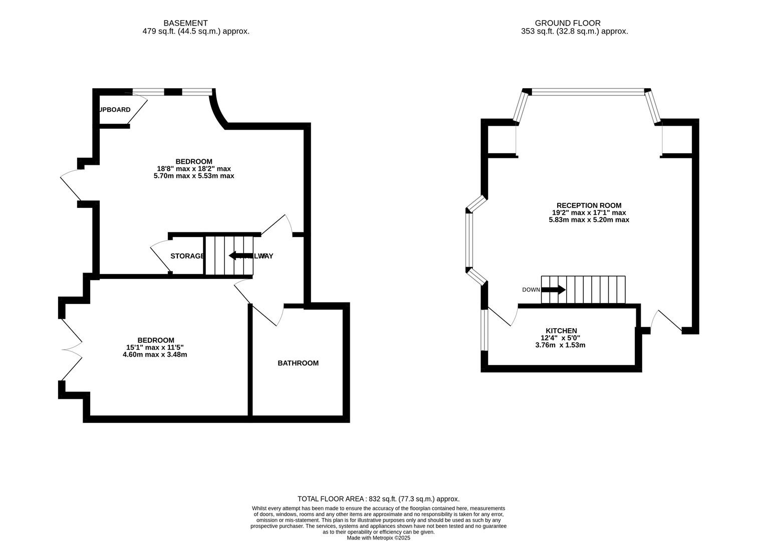
A bright and spacious two bedroom maisonette with STUNNING SEA VIEWS situated in an UNRIVALLED LOCATION, ADJACENT TO THE BEACH and Warrior Square Gardens. The hub of St. Leonards-On-Sea is also within immediate reach and provides a collection of artisan shops, art galleries, eateries along with a mainline railway station with connections to London. Spanning the GROUND AND LOWER FLOOR of this impressive residence, the accommodation here is arranged as a bright, DUAL ASPECT LIVING SPACE enjoying VIEWS OF THE SEA and measuring 19’2 x 17’1 it offers plenty of room for a full dining table, creating a sociable setting. The modern fitted kitchen is separate and provides ample storage space. The TWO DOUBLE BEDROOMS are positioned on the lower floor together with a family bathroom where there is a bath with shower and screen over. The principal bedroom also benefits from double doors leading to an internal courtyard. Being sold with NO ONWARD CHAIN this fantastic property would make the PERFECT SEASIDE RETREAT and is not one to be missed.
Features
Warrior Square, St. Leonards-On-Sea, East Sussex, TN37 6BA
- Two bedroom apartment
- Set on the ground floor
- Stunning sea views
- Fitted kitchen
- Generous living room
- Adjacent to the beach
- Additional internal courtyard space
- No onward chain
View On Map
Something To Note
We love the properties we list, and we try to capture them in the best way possible. While we aspire for perfection, our pictures, descriptions, and measurements are made purely for guidance. We highly advise you to view the property in person, so you can gain the full experience of what can potentially be your new beautiful home.















